Haus

Neuwertiges, energieeffizientes Reihenmittelhaus in Stadtteil von Deggendorf- top vermietet, ideal für Anleger!

Eckdaten der Immobilie
Objekt ID:
25966
Kaufpreis:
499000
Warmmiete:
Kaltmiete:
Nebenkosten:
Kaution:
Baujahr:
2020
Zimmer:
5
Wohnfläche:
137.24
Grundstücksfläche:
213.00
Nutzfläche:
26.13
Zustand:
Neuwertig
Stellplatzart:
Carport, Freiplatz
Stellplatzanzahl:
2
Außen Provision:
2,38 % inkl. MwSt vom Kaufpreis
Verfügbar ab:
Neuwertiges, energieeffizientes Reihenmittelhaus in Stadtteil von Deggendorf- top vermietet, ideal für Anleger!

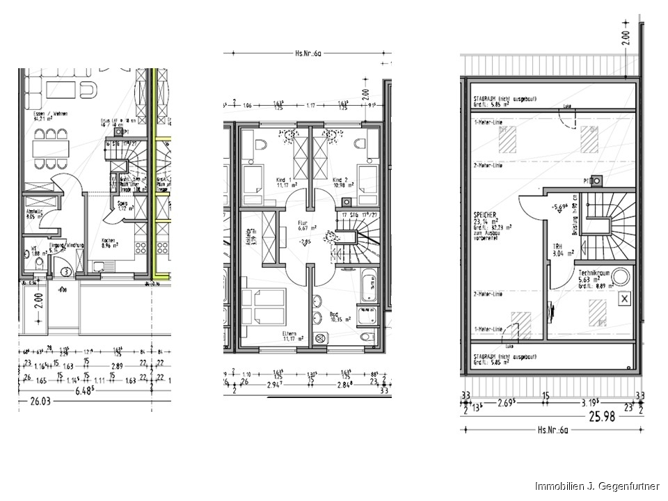
Hier finden Sie eine moderne, energieeffiziente Immobilie mit einem reichlichen Platzangebot in idyllischer Lage. Dieses helle Haus eignet sich ideal mit seinen ca. 142 m² zur Kapitalanlage, da es sehr gut an ein Ehepaar vermietet ist, welches noch mind. 10 Jahre in der Immobilie bleiben möchte. Mietteinnahme 20.400,00 Euro Kaltmiete p.a. Durch die moderne Ausstattung und geringen Unterhaltskosten ist das Objekt für die Zukunft bestens gewappnet. Beim Betreten der Immobilie befindet man sich im Flur. Hier finden Sie das moderne Gäste-WC sowie auch einen Garderobenraum mit Einbauschränken. Das lichtdurchflutete Erdgeschoss bietet einen offenen Wohn- und Esszimmerbereich mit ca. 34,00 m². Hier hat man die Möglichkeit durch die bodentiefen Fenster direkt auf die Terrasse zu kommen. An diesen Bereich grenzt die moderne Einbauküche mit einer kleinen nützlichen Speisekammer an. Das erste Obergeschoss ist über die hochwertige Holztreppe zu erreichen und bietet neben einem Tageslichtbad auch drei Schlafzimmer. Ein Schlafzimmer ist ebenfalls mit "schreinergemachten" Einbauschränken ausgestattet ist. Das große Badezimmer ist geschmackvoll eingerichtet und bietet neben einer schönen Dusche mit Glaselementen auch eine Badewanne und ein Doppelwaschbecken an. In das zweite Obergeschoss gelangt man wiederum über das Treppenhaus und man findet hier nochmals ein großes Schlafzimmer mit ca 32,00 m² vor. Hierbei sind besonders die hoch qualitativen Einbauschränke hervorzuheben. An das Schlafzimmer grenzt dann der Hauswirtschaftsraum an, mit Wärmepumpe, Waschmaschinenanschluss, Trockneranschluss und dem Speicher der PV-Anlage. Das komplette KfW-55-Anwesen ist mit einer Wärmepumpe und Fußbodenheizung ausgestattet. Im Jahr 2023 wurde eine Photovoltaikanlage mit 7,5 kWp inkl. Speicher installiert. Durch die PV-Anlage wirkt sich der Energiebedarf (durch die Einspeisung) durch Eigenverbrauch und Rückerstattung positiv aus. Der Energieausweis ist in Erstellung!

Lagebeschreibung

Dieses top moderne Reihenmittelhaus befindet sich in sehr guter Lage im Stadtteil Natternberg in Deggendorf. Einkaufsmöglichkeiten, Schulen, Kindergarten, Cafes, Ärzte, diverse Freizeiteinrichtungen oder öffentliche Einrichtungen sind bequem mit Fahrrad oder öffentlichen Verkehrsmitteln erreichbar. Außerdem sind Sie im Nu auf der A3 Richtung Regensburg oder Passau oder auf der A92 Richtung München. Deggendorf mit seinen ca. 38.905 Einwohnern (Stand Januar 2025) ist eine große Kreisstadt im niederbayerischen Landkreis Deggendorf. Die Hochschulstadt wird aufgrund ihrer Lage im Donautal, dort, wo die Isar in die Donau fließt, am Fuße des Bayerischen Waldes auch als " Tor zum Bayerischen Wald " bezeichnet. Deggendorf bietet seinen Bürgern ein breitgefächertes Bildungs- und Ausbildungsangebot. Angefangen von den Kindergärten über Grund- und Hauptschulen und den weiterführenden Schulen bis hin zur Fachhochschule hat Deggendorf für jeden Wunsch das adäquate Angebot. Das historische Altstadtviertel, die Fußgängerzone und der neu gestaltete Luitpoldplatz machen den Stadtbummel zum Erlebnis. Deggendorf bietet Ihnen über 500 leistungsstarke Geschäfte aus allen Branchen und liegt direkt am Autobahnkreuz A3 und der A92. Deggendorf selbst verfügt über ein sehr großes Einzugsgebiet und ist zudem nahe am Eisenbahnknotenpunkt von Plattling (ICE - Strecke Nürnberg - Passau) mit direkter Verbindung nach Prag gelegen. Weitere Infos unter: www.deggendorf.de

Austattung

* Baujahr 2020 * Holzständerbauweise * ca. 142 m² Wohnfläche * ca. 213 m² Grundstücksfläche * Energieeffizienz A+ * schöne, helle Räume, bodentiefe Fenster * Kunststofffenster 3-fach verglast * elektrische Rollos * Haustüre mit 3-fach Verglasung * Luft/Wasser-Wärmepumpe, Leistung ca. 9kW, Warmwasserspeicher 300 Liter * Komfort-Fußbodenheizsystem * PV Anlage mit 7,5 kWp von Grünauer * Einspeisevergütung der PV p.a. von ca. 8,6 Cent, Erzeugung der Anlage ca. 4.000 kWh * AC/DC-Hybrid-Speichersystem mit integrierten PV-Wechselrichter von Senec * Wallbox * Heizungs- bzw. Technikraum * 1 Carport und ein Außenstellplatz * hochwertige Einbauküche mit Markengeräten * hochwertige Einbauschränke * Holzterrasse mit ca. 18 m² * Tageslichtbad mit Wanne, Dusche, WC und Waschbecken * Fußbodenheizung in der kompletten Immobilie

Heizungsangaben
Energieausweis:
In Erstellung
Baujahr:
Heizungsart:
Fussboden
Wesentlicher Energieträger:
Luftwp
Energieausweistyp:
Zustand:
Neuwertig
Energieeffizienzklasse:
Endenergieverbrauch:
Endenergiebedarf:
Gültig bis:
Sonstige Angaben

Tipp: Wenn Sie jemanden kennen, der eine Immobilie zu verkaufen hat, so zahlen wir Ihnen für einen erfolgreichen Tipp 500.-- ! Halten Sie einfach "Ohren und Augen" offen - es lohnt sich. Energieausweis in Erstellung!

Beratung, Einfach, Erfolgreich, Besser

Sichern Sie sich eine unverbindliche und kostenlose Beratung.
Mit über 30 Jahren Erfahrung wissen wir genau, worauf es ankommt.

Immobilie jetzt anfragen!

Wir melden uns schnellstmöglich mit weiteren Informationen bei Ihnen!

Ansprechpartner - Helmut Zaglauer
Geschäftsführer & Gründer
Ansprechpartner - Johannes Zaglauer
Selbständiger Immobilienmakler
Ansprechpartner - Helmut Zaglauer
Geschäftsführer & Gründer
Ansprechpartner - Josef Gegenfurtner
Geschäftsführer & Gründer
Ansprechpartner - Lothar Vogl
Selbständiger Immobilienmakler
Danke! Wir werden so schnell wie möglich für Sie da sein.
Ups! Bitte füllen Sie alle Felder aus.